Sisäänrakennettu UV-C-säteilyä säteilevä moduuli suorittaa tehokkaan ja
tehokkaan ilman steriloinnin sekä laitteen kelan pinnalla että sen läpi kulkevassa ilmassa
. Riippumaton Texcell-laboratorio on sertifioinut moduulin suorituskyvyn
.

Käyttäjien vaatimusten mukaan staattista painetta voidaan säätää langanohjaimella perinteisen punaisen ja valkoisen liittimen vaihtamisen sijasta. Koko sarjan suurin staattinen paine voi olla 100Pa.
Yksikkö voi liittää useita huoneita ilmakanavan kautta, ja se voidaan järjestää joustavasti eri talotyyppien mukaan, yksi ilmastointilaite, monen huoneen jakaminen.


Vakio lauhdeveden nostopumppu, vakiopää 700mm ja sisäänrakennettu kellukekytkin, kätevä tehdä yhteistyötä sivuston todellisen tilanteen kanssa, lauhdeveden tyhjennys ilmastointi.
Sisäyksiköissä mahdollistaa kertakäyttöisen puristuksen säätämisen käyttäjän johdotetulla ohjaimella.


Laitteissa on sisäänrakennettu kondenssivesipumppu, jonka nostokyky on suuri - jopa 450 mm.
Kolme tyhjennystapaa.


Sähkökomponentteja sisältävä moduuli sijaitsee suoraan säleikön alla, mikä mahdollistaa helpon huoltotoiminnan.
| Tekniset tiedot | Yksiköt | MIDJ- 05X1EV2AA |
MIDJ- 07X1EV2AA |
MIDJ- 09X1EV2AA |
MIDJ- 12X1EV2AA |
MIDJ- 16X1EV2AA |
MIDJ- 18X1EV2AA 18X1EV2AA |
MIDJ- 24X1EV2AA |
MIDJ- 28X1EV2AA |
MIDJ- 30X1EV1AA |
MIDJ- 38X1EV1AA |
MIDJ- 48X1EV1AA |
MIDJ- 54X1EV1AA |
| Kapasiteetti | |||||||||||||
| Jäähdytys | kW | 1,50 | 2,20 | 2,80 | 3,60 | 4,50 | 5,60 | 7,10 | 8,00 | 9,00 | 11,20 | 14,00 | 16,00 |
| Lämmitys | kW | 1,70 | 2,50 | 3,20 | 4,00 | 5,00 | 6,30 | 8,00 | 9,00 | 10,00 | 13,00 | 16,30 | 18,00 |
| Sähköiset parametrit | |||||||||||||
| Virtalähde | Ph/V/Hz | 1/220~230/50/60 | |||||||||||
| Ilmanvaihto | |||||||||||||
| Ilmavirta (H/M/L) | m3/h | 515/ 440/390 |
545/ 470/390 |
545/ 470/390 |
570/ 495/420 |
700/ 625/550 |
915/ 765/640 |
1275/ 1050/875 |
1275/ 1050/875 |
1450/ 1200/1000 |
2000/ 1700/1400 |
2150/ 1700/1400 |
2350/ 1950/1600 |
| Äänenpaine (H/M/L) |
dB(A) | 29/27/25 | 30/28/25 | 30/28/25 | 31/29/27 | 32/30/28 | 33/31/29 | 34/31/29 | 35/33/30 | 36/33/30 | 38/35/32 | 40/36/32 | 42/38/34 |
| Ääniteho (H/M/L) |
dB(A) | 41/39/37 | 42/40/37 | 42/40/37 | 43/41/39 | 44/42/40 | 45/43/41 | 46/43/41 | 47/45/42 | 48/45/42 | 50/47/44 | 52/48/44 | 54/50/46 |
| Asennus - Mitat | |||||||||||||
| Nettomitat (LxSxKxK) |
mm | 700x700x248 | 1100x700x248 | 1500x700x248 | |||||||||
| Pakkausyksikkö mitat (LxSxKxS) |
mm | 932x835x280 | 1332x835x280 | 1698x857x305 | |||||||||
| Netto-/bruttopaino |
Kg | 27,0/ 32,0 |
27,0/ 32,0 |
27,0/ 32,0 |
27,0/ 32,0 |
28,5/ 33,5 |
36,8/ 43,4 |
36,8/ 43,4 |
36,8/ 43,4 |
39,4/ 45,4 |
48,3/ 56,5 |
51,3/ 59,5 |
51,3/ 59,5 |
| Ø Nesteputki | mm (tuuma) |
6,35 (1/4) |
6,35 (1/4) |
6,35 (1/4) |
6,35 (1/4) |
6,35 (1/4) |
6,35 (1/4) |
9,52 (3/8) |
9,52 (3/8) |
9,52 (3/8) |
9,52 (3/8) |
9,52 (3/8) |
9,52 (3/8) |
| Ø Kaasuputki | mm (tuuma) |
9,52 (3/8) |
9,52 (3/8) |
9,52 (3/8) |
12,70 (1/2) | 12,70 (1/2) | 12,70 (1/2) | 15,88 (5/8) |
15,88 (5/8) |
15,88 (5/8) |
15,88 (5/8) |
15,88 (5/8) |
15,88 (5/8) |
| Staattinen paine (Vakio/Max.) |
Pa | 20/200 | 20/200 | 20/200 | 20/200 | 20/200 | 20/200 | 20/200 | 20/200 | 20/180 | 20/180 | 20/180 | 20/180 |
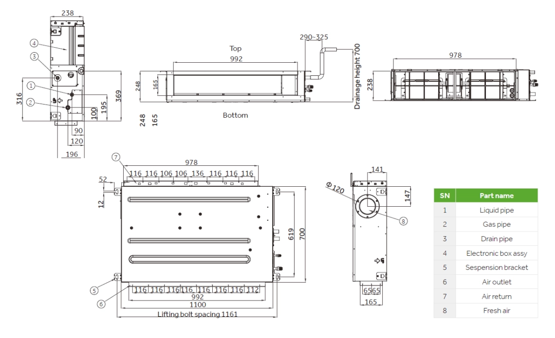
MIDG-38X1EV2AD(H) MIDG-48X1EV2AD(H) MIDG-54X1EV2AD(H) MIDJ-38X1EV1AA MIDJ-48X1EV1AA MIDJ-54X1EV1AA MIDJ-48X1EV1AA

Mitat
MIDJ-05X1EV2AA MIDJ-07X1EV2AA MIDJ-09X1EV2AA MIDJ-12X1EV2AA MIDJ-16X1EV2AA MIDJ-16X1EV2AA

Mitat
MIDJ-18X1EV2AA MIDJ-24X1EV2AA MIDJ-28X1EV2AA MIDJ-30X1EV1AA
